Skip to content

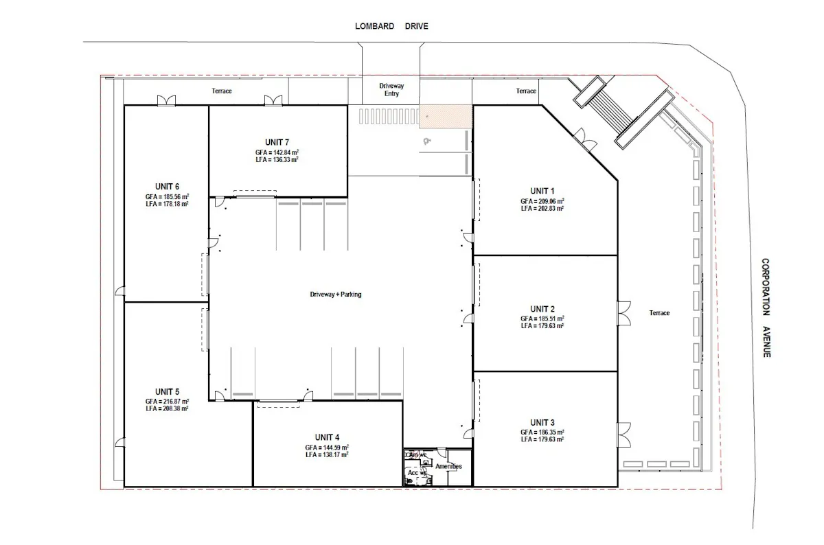
5/11 Corporation Avenue

Robin Hill NSW 2795

$539,000

CORPORATION HQ - SOLID INVESTMENT - INVESTORS!!

- Corporation HQ, the original and most conveniently located Business
Complex
- Lot 5, largest Lot in the complex offering GFA = 216.87 m2 LFA = 208.38 m2
- Current Lease Term 2 Years with 2 x 2 Year Options
- Rent $31,518.75 PA with a fixed 2.5% annual increases
- Small 7 Lot only strata
- Precast Panel Wall Concrete Construction Colorbond Trimdeck to roof and awnings
- LED high bay lighting
- High clearance Panel Roller Shutter Door
- 1 Allocated parking space
- Communal bathroom and amenities

Features

General Features

  • Commercial Type: Industrial/Warehouse
  • Building Area: 217sqm

Can I afford 5/11 Corporation Avenue?

Whether you’re a first-time buyer, looking for your next home, or considering upgrading or downgrading, Elders Finance can unlock the doors to the right finance option for you and get you into the home of your dreams.

Calculators

Elders Nicoll & Ireland

Enquire about 5/11 Corporation Avenue, Robin Hill, NSW, 2795

Property guides and resources

Federal Budget 2026–27: What It Means for Property Owners, Renters and Investors

The 2026–27 Federal Budget introduces a range of changes to Australia’s property…
Read more

Spaces That Bring the Family Together

There’s something special about the spaces where life naturally gathers. The kitchen…
Read more

Simple Ways to Refresh Your Home for the Cooler Months

There’s something about this time of year that invites a reset. After…
Read more